Уникальный инвестиционный проект — жилой комплекс с АЗС в Лапчичи, Будва
- Статус: Продажа
- Тип: Отели/коммерческие помещения
- Область: Будва
- Спальни: 16
- Ванные: 16
- Площадь: 1800 м²
- Гараж / Парковка: Да
- Год: 2017
- ID2: D
Удобства
- Вид на море
Описание
Представляем к продаже уникальный инвестиционный проект, состоящий из жилого комплекса с 16 квартирами и АЗС, расположенный в поселке Лапчичи, муниципалитет Будва. Местоположение чрезвычайно привлекательно, поскольку соединяет Будву с внутренними районами Черногогии и представляет собой отличную возможность для сочетания туристического и коммерческого бизнеса.
Этот проект предлагает стабильную окупаемость инвестиций за счет размещения туристов и постоянного дохода от АЗС и особенно интересен инвесторам, желающим объединить различные источники дохода в одном месте.
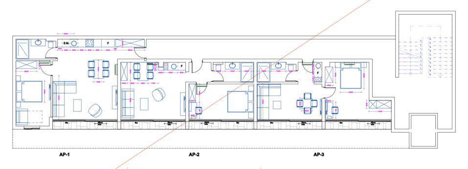
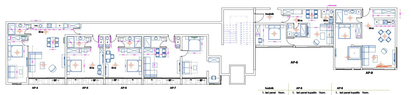
Жилой комплекс (чистая площадь застройки: 1 800 м²)
Это сердце продуманного поселения на холмах над Будвой. Комплекс объединяет в себе 16 комфортабельных, хорошо спроектированных апартаментов, уединённое пространство для мероприятий и кафе-бар. Расположенный примерно в 600 метрах над уровнем моря и всего в 8 км от Будвы, проект предлагает редкое сочетание ощущения спокойствия и простора, находясь при этом рядом с побережьем, городом и ключевыми достопримечательностями. Проект создан для тех, кто ищет простоту, баланс и место, где можно замедлиться — будь то на несколько дней или на долгий срок.
Благодаря использованию натуральных материалов, панорамным видам и практичному дизайну, пространство для мероприятий (520 кв. м) идеально подходит для небольших встреч, творческих мастер-классов или рабочих сессий. Кафе-бар (70 кв. м) — это уютное место для общения, чтения или просто созерцания прекрасных видов. Все эти элементы вместе создают место, которое поддерживает самые разные стили жизни: от удалённой работы и коротких поездок на выходные до спокойного семейного отдыха или творческого перезапуска. На территории комплекса также расположена профессиональная прачечная.
Комплекс предлагает 16 полностью оборудованных современных апартаментов и 4 офисных помещения, предназначенных для сезонного и долгосрочного проживания, а также для удаленной работы.
Здание отеля (2P+S+P) площадью 522 кв. м было построено в 2017 году. Дополнительные коммерческие помещения имеют площади 147 кв. м, 114 кв. м, 322 кв. м и 349 кв. м. На площади 932 м² нет обременений и ограничений, что подтверждается разрешением на строительство. Для возможного процесса легализации других площадей необходимо подать заявление в соответствии с действующим законодательством Черногории.
Уникальный инвестиционный потенциал
Стратегическое расположение на побережье Адриатического моря.
Развивающаяся туристическая отрасль.
Привлекательность для иностранных инвесторов.
Стабильный политический климат и стабильная валюта (евро).
Природное разнообразие и красота: побережье, горы, озера и 5 национальных парков.
Растущий рынок недвижимости: высокий спрос на элитные, туристические и жилые объекты.
Это больше, чем просто недвижимость — это концепция, которая меняет привычный взгляд на то, как люди живут, работают и отдыхают в самом сердце Черногории.
Стратегическое расположение с легким доступом с главной автомагистрали делает это место идеальным как для коротких остановок, так и для деловых поездок с ночевкой. Комплекс предлагает один из самых захватывающих панорамных видов на Будванскую ривьеру, чистый воздух, тишину и нетронутую природу, находясь всего в нескольких минутах от динамичной Будвы. Наличие эксклюзивной крыши с джакузи предлагает высококлассные оздоровительные услуги.
Бензозаправочная станция
АЗС расположена вдоль главной дороги Будва — Подгорица. Ее стратегическое расположение рядом с Будвой (столицей туризма) и Цетинье (культурным центром), высокая заметность и интенсивный автомобильный трафик, включая туристический транспорт, обеспечивают постоянный приток клиентов.
Инфраструктура АЗС включает:
• автозаправочную станцию (448 кв. м);
• коммерческое помещение (127 кв. м);
• пристройку (35 кв. м);
• площадь прилегающего к зданиям заправки участка составляет 2675 кв. м.
Стоимость
• Комплекс с учетом автозаправочной станции — 7 500 000 евро.
• Комплекс без автозаправочной станции — 4 200 000 евро.
- ID: 82139
- Опубликовано: 12.09.2025
- Последнее обновление: 31.10.2025
- Просмотры: 385